リノベマンションARISE エフステージのサービス 物件を探す お悩み解決コンテンツ スタッフについて 会員限定コンテンツ
閲覧履歴 ログイン 新規登録
物件を探すMYSTAGEに掲載されている物件はすべて仲介手数料が無料です
エリア / テーマ別で検索
販売物件マップ
お悩み解決コンテンツリノベマンション購入に役立つコンテンツを用意しています
購入の不安を安心にカエール!不動産のギモン集
購入前の腕試し!理想のお家がカエールクイズ
購入成功者の事例で学ぶ!お悩み解決コラム
新規登録 ログイン
トップ リノベマンションARISE エフステージのサービス
物件を探す
ARISEを探す エリア / テーマ別で検索 販売物件マップ
お悩み解決コンテンツ
お悩み解決コンテンツ一覧 不動産のギモン集 理想のお家がカエールクイズ お悩み解決コラム
スタッフについて 会員限定コンテンツ
運営会社 ARISE 個人情報保護方針 利用規約
FOLLOW US
©2025 FSTAGE. All Rights Reserved.
掲載物件はすべて仲介手数料が無料
NEW

コスモ東池袋 1203号室

お気に入り
内装スタイル
内装完了予定日 2026年05月15日
工事中物件のご内覧も大歓迎!

3件に1件が工事中にご成約となっております。
ぜひお早めにご見学ください!

販売価格 9,998 万円
直接取引だから仲介手数料ゼロ
約336万円 無料
簡単1分! 見学予約する
登記簿面積
100.39m²
間取り
3LDK
階建 / 階数
13階建12・13階
築年月
1988年 3月
管理費等 月額39,830 円
修繕積立金 月額24,680 円
東京都豊島区東池袋2-57-2 Googleマップ
  • ◆山手線・他7路線「池袋」駅徒歩8分
  • ◆有楽町線「東池袋」駅徒歩10分
特長 物件詳細 支払い目安 諸費用

特長

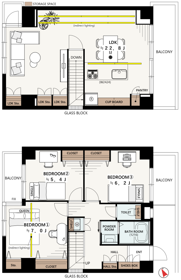
最上階&日照・眺望良好!メゾネットタイプ住戸

■LDKは間接照明を配した広々約22.8㎡♪
■開放的な2424サイズのフルフラットキッチン
■南東・北西の両面バルコニー付き
■新耐震基準・ペット飼育可
 

周辺環境

■ビッグターミナル池袋駅徒歩8分!
大型商業施設を日常使い♪
■24時間営業の【マルエツプチ】まで徒歩約4分
物件の設備・条件
ペット可(詳細有)
最上階
眺望良好
陽当たり良好
通風良好
食洗機
浴室乾燥機
浄水器
保温浴槽
間取り図
間取図
登記簿面積 100.39m²
間取り 3LDK
完成イメージ動画
完成後のお部屋がわかりやすくイメージできる「完成イメージ動画」です。工事中でも完成イメージがわかり安心とご好評をいただいています。
  • 記載の設備仕様は「標準仕様」であり、設備・仕様・サイズ・カラーなどが実際の物件と異なる場合がございます。
  • 画像はCGイメージの場合があります。
設備仕様について 内装のスタイルについて
住まいの満足度を高める
ARISEのこだわりコンセプト
詳しく見る
詳しく見る

物件詳細

所在地
東京都豊島区東池袋2-57-2
交通情報
◆山手線・他7路線「池袋」駅徒歩8分
◆有楽町線「東池袋」駅徒歩10分
登記簿面積
100.39m²
間取り
3LDK
築年月
1988年 3月
総戸数
58戸
階建 / 階数
13階建 / 12・13階
建物構造
SRC構造
土地権利
(土地共有特分)
所有権
用途地域
商業
管理費
月額 39,830円
修繕積立費
月額 24,680円
管理形態
全部委託
管理人
通勤
管理会社
株式会社合人社計画研究所
施工会社
株式会社奥村組
引き渡し
相談
現況
空部屋 (内装完了予定日 2026/05/15)
事務所利用
不可
エレベーター
有り
オートロック
無し
駐車場
なし
ペット飼育
可(規約に準ず)
取引形態
売主
備考
・ネット設備:個別契約

支払い目安

月々のローン返済額の目安

0 円 / 月

ご予定の資金計画を入力してください

借入金額
9,998万円
自己資金額
万円
ボーナス返済
万円 / 年
返済期間
リセット 計算する

月々のローン
返済額の目安

0

円 / 月

( 金利 ) 0.875 %

返済額の内訳
借入金額
9,998万円
物件価格
9,998万円
諸費用合計(概算)
0万円
自己資金額
0万円
諸注意

※別途、管理費・修繕積立金ほか専用使用料などがかかります。

※物件の詳細情報欄に各種月額料金の記載がございますので、ご確認くださいませ。

※試算結果の数字は、あくまでも目安であり実際の契約締結時における返済予定額とは異なります。
また、シミュレーション結果に起因してお客様が受けた、いかなる損害についても当社は一切の責任を負いません。予めご了承ください。

※月々支払額は、金利等の当初の借入条件が一定で変化しないものと仮定し、試算しております。金利は年金利で表示しています。

※金利は参考金利であり、実際のお借入の金利は、お借入れされる方の諸条件、ご利用される金融機関、借入額等によって決定されるため、異なる場合があります。

※ボーナス払いは原則年2回のお支払いになります。

※借入可能年数は満80歳までの完済を原則とし79-ご年齢が最大借入年数となります

※ローン契約前には審査があり、ローン契約が成立しない場合もあります。詳細は、金融機関などにお問い合わせください。

諸費用

諸費用合計
0
万円
( 物件価格 ) 9,998 万円
諸費用の内訳
合計
0万円
手数料 約336万円 ⇒ 0円

弊社と直接の取引となり仲介会社を通さないため、一般的にかかる「仲介手数料」がかかりません!

仲介手数料
0円
登記費用
29.7万円
抵当権設定登記費用
10万円
登記手数料
15万円
固定資産税等精算金
17.2万円
管理費等精算金
13万円
契約時印紙代
3万円
金銭消費賃貸契約書印紙代
6.1万円
ローン事務手数料
5.5万円
融資手数料
220万円
火災保険料
12万円
不動産取得税
8万円
諸注意

※居住目的で住宅ローンを利用することを前提に計算された概算値となります(物件価格のみ借入の場合)。記載の金額は一般的な参考情報であり、断定的な判断材料を提供するものではありません。お借入れされる方の諸条件、ご利用される金融機関、借入金額等によって諸費用合計額が増減する場合があります。予めご了承ください。

※物件により別途「耐震適合証明書発行費用」「フラット35S適合証明書発行費用」「既存住宅売買瑕疵保険調査費」などの費用が発生する場合がございます。

※固定資産税等精算金の金額は年額分となります。実際は決済日により異なります。

※管理費等精算金の金額は2か月分となります。実際は決済日により異なります。

※全て税込、百円単位切り上げ表示です。

物件や内覧について
お気軽にお問い合わせください
WEBからお問い合わせ
掲載物件はすべて仲介手数料が無料
0120-123-970
受付時間 / 10:00〜18:30
(定休日 / 第1・3火曜日、毎週水曜日)
物件や内覧について
お気軽にお問い合わせください

掲載物件はすべて
仲介手数料が無料

0120-123-970 受付時間 / 10:00〜18:30 (定休日 / 第1・3火曜日、毎週水曜日)
WEBからお問い合わせ

この物件を
お気に入り登録しませんか?

※ お気に入り機能のご利用には、会員登録が別途必要です。
お気に入り
未公開物件も
チェックしてみませんか?
未公開物件とは不動産ポータルサイト公開前の物件情報を
いち早くお届けするMYSTAGE限定のサービスです。
工事着工前のため、内装変更がしやすく
自分好みにお部屋をカスタマイズしたい人にもオススメです。
更新される物件数は月平均50件以上!是非チェックしてみてください。
未公開物件をチェックする
エフステージのサービスを
ご存知ですか?
リノベーション総合企業として、お客様が本当に求める住宅づくりの追求と豊かな社会の実現に貢献します。
詳しく見る
購入前の腕試し!理想のお家が
カエールクイズ
詳しく見る
購入成功者の事例で学ぶ!
お悩み解決コラム
詳しく見る
購入の不安を安心にカエール!
不動産のギモン集
詳しく見る
会員登録はお済みですか?
会員登録すると他にも
様々なサービスをご利用いただけます。
未公開物件情報の
閲覧が可能
来店不要で
住宅ローン相談
各種メールの
通知機能
お気に入り
登録機能
新規登録画面へ移動する
ログイン画面へ
閲覧履歴
リノベマンションARISEを探す
トップ リノベマンションARISEを探す コスモ東池袋
ご見学・物件について
お気軽にお問い合わせください
簡単1分! 見学予約する

掲載物件はすべて仲介手数料が無料

0120-123-970
受付時間 / 10:00〜18:30
(定休日 / 第1・3火曜日、毎週水曜日)
物件探しのご相談をご希望の方は下記よりお問い合せください。

掲載物件はすべて
仲介手数料が無料

0120-123-970
受付時間 / 10:00〜18:30 (定休日 / 第1・3火曜日、毎週水曜日)
お問い合わせはこちら
受付時間 / 10:00〜18:30 (定休日 / 第1・3火曜日、毎週水曜日)
MYSTAGEを知る
トップ リノベマンションARISE エフステージのサービス スタッフについて 会員限定コンテンツ
物件を探す
ARISEを探す エリア / テーマ別から探す 販売物件マップから探す
お悩みを解決する
お悩み解決コンテンツ一覧 不動産のギモン集 カエールクイズ お悩み解決コラム
会社案内
運営会社 ARISE 個人情報保護方針 利用規約
MYSTAGEを知る
トップ リノベマンションARISE エフステージのサービス スタッフについて 会員限定コンテンツ
物件を探す
ARISEを探す エリア / テーマ別から探す 販売物件マップから探す
お悩みを解決する
お悩み解決コンテンツ一覧 不動産のギモン集 カエールクイズ お悩み解決コラム
会社案内
運営会社 ARISE 個人情報保護方針 利用規約
PICK UP
OUR SERVICES
エフステージだからできる6つのこと
ARISE
”先進”のリノベマンション
ARISE
MEMBERSHIP
会員になって理想のお住まいを探しませんか?
RESOLUTION
購入の不安を安心に変えよう!
FOLLOW US
©2025 FSTAGE. All Rights Reserved.