リノベマンションARISE エフステージのサービス 物件を探す お悩み解決コンテンツ スタッフについて 会員限定コンテンツ
閲覧履歴 ログイン 新規登録
物件を探すMYSTAGEに掲載されている物件はすべて仲介手数料が無料です
エリア / テーマ別で検索
販売物件マップ
お悩み解決コンテンツリノベマンション購入に役立つコンテンツを用意しています
購入の不安を安心にカエール!不動産のギモン集
購入前の腕試し!理想のお家がカエールクイズ
購入成功者の事例で学ぶ!お悩み解決コラム
新規登録 ログイン
トップ リノベマンションARISE エフステージのサービス
物件を探す
ARISEを探す エリア / テーマ別で検索 販売物件マップ
お悩み解決コンテンツ
お悩み解決コンテンツ一覧 不動産のギモン集 理想のお家がカエールクイズ お悩み解決コラム
スタッフについて 会員限定コンテンツ
運営会社 ARISE 個人情報保護方針 利用規約
FOLLOW US
©2025 FSTAGE. All Rights Reserved.
掲載物件はすべて仲介手数料が無料

溝の口サンビューハイツ 208号室

お気に入り
内装スタイル
内装完了予定日 2026年03月13日
工事中物件のご内覧も大歓迎!

3件に1件が工事中にご成約となっております。
ぜひお早めにご見学ください!

販売価格 4,980 万円
直接取引だから仲介手数料ゼロ
約170万円 無料
簡単1分! 見学予約する
専有面積
68.39m²
間取り
2SLDK
階建 / 階数
地下1階付 7階建2階
築年月
1978年 6月
管理費等 月額14,900 円
修繕積立金 月額16,690 円
神奈川県川崎市高津区久本3-5-1 Googleマップ
  • ◆田園都市線・大井町線「溝の口」駅徒歩10分
  • ◆南武線「武蔵溝ノ口」駅徒歩9分
特長 物件詳細 支払い目安 諸費用

特長

生活利便性良好♪落ち着いた住環境の【溝の口】

■カウンター付き対面キッチンは食洗機を標準装備
■バスルームは浴室乾燥機付き&保温浴槽仕様
■廊下収納は可動棚&コンセント付き
■ペット飼育2匹まで可
 

周辺環境

■「ノクティプラザ」「マルイ」等の商業施設あり!
■「ファミリーマート」まで徒歩約3分
物件の設備・条件
防犯カメラ
宅配ボックス
ペット可(詳細有)
通風良好
食洗機
浴室乾燥機
対面キッチン
浄水器
保温浴槽
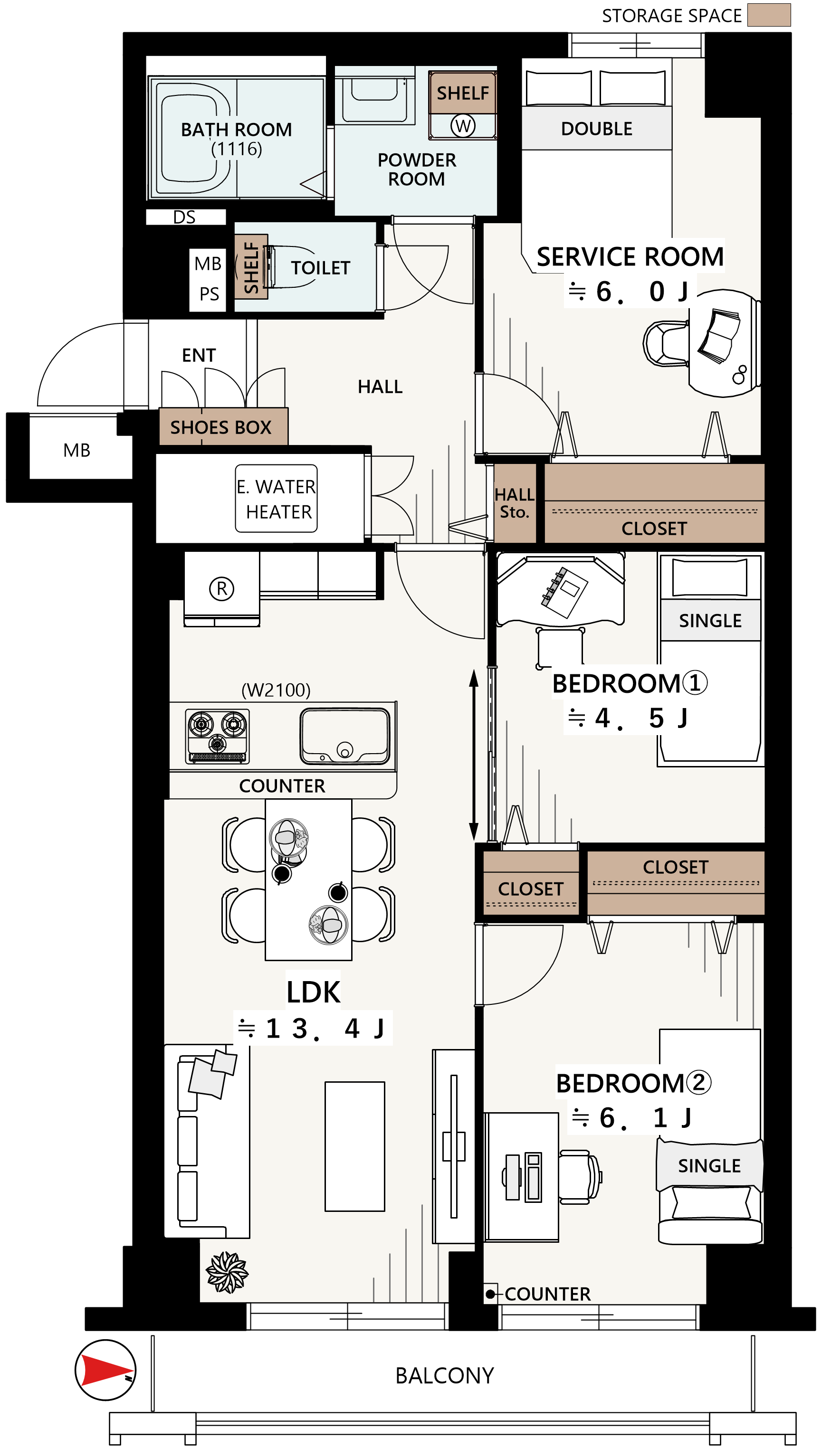
間取り図
間取図
専有面積 68.39m²
間取り 2SLDK
完成イメージ動画
完成後のお部屋がわかりやすくイメージできる「完成イメージ動画」です。工事中でも完成イメージがわかり安心とご好評をいただいています。
  • 記載の設備仕様は「標準仕様」であり、設備・仕様・サイズ・カラーなどが実際の物件と異なる場合がございます。
  • 画像はCGイメージの場合があります。
設備仕様について 内装のスタイルについて
住まいの満足度を高める
ARISEのこだわりコンセプト
詳しく見る
詳しく見る

物件詳細

所在地
神奈川県川崎市高津区久本3-5-1
交通情報
◆田園都市線・大井町線「溝の口」駅徒歩10分
◆南武線「武蔵溝ノ口」駅徒歩9分
専有面積
68.39m²
間取り
2SLDK
バルコニー面積
4.94m²
築年月
1978年 6月
総戸数
57戸
階建 / 階数
地下1階付 7階建 / 2階
建物構造
SRC構造
土地権利
(土地共有特分)
所有権
用途地域
準工業
管理費
月額 14,900円
修繕積立費
月額 16,690円
管理形態
全部委託
管理人
通勤
管理会社
株式会社東急コミュニティー
施工会社
大日成建設株式会社
引き渡し
相談
現況
空部屋 (内装完了予定日 2026/03/13)
事務所利用
不可
エレベーター
有り
オートロック
無し
駐車場
空きあり 月額:12,000円~15,600円
ペット飼育
可(規約に準ず)
取引形態
売主
備考
・ネット設備:NTT(戸別加入)/ イッツコム / KDDI
※登記簿謄本上の名称は「溝ノ口サンビューハイツ」となります。

支払い目安

月々のローン返済額の目安

0 円 / 月

ご予定の資金計画を入力してください

借入金額
4,980万円
自己資金額
万円
ボーナス返済
万円 / 年
返済期間
リセット 計算する

月々のローン
返済額の目安

0

円 / 月

( 金利 ) 0.875 %

返済額の内訳
借入金額
4,980万円
物件価格
4,980万円
諸費用合計(概算)
0万円
自己資金額
0万円
諸注意

※別途、管理費・修繕積立金ほか専用使用料などがかかります。

※物件の詳細情報欄に各種月額料金の記載がございますので、ご確認くださいませ。

※試算結果の数字は、あくまでも目安であり実際の契約締結時における返済予定額とは異なります。
また、シミュレーション結果に起因してお客様が受けた、いかなる損害についても当社は一切の責任を負いません。予めご了承ください。

※月々支払額は、金利等の当初の借入条件が一定で変化しないものと仮定し、試算しております。金利は年金利で表示しています。

※金利は参考金利であり、実際のお借入の金利は、お借入れされる方の諸条件、ご利用される金融機関、借入額等によって決定されるため、異なる場合があります。

※ボーナス払いは原則年2回のお支払いになります。

※借入可能年数は満80歳までの完済を原則とし79-ご年齢が最大借入年数となります

※ローン契約前には審査があり、ローン契約が成立しない場合もあります。詳細は、金融機関などにお問い合わせください。

諸費用

諸費用合計
0
万円
( 物件価格 ) 4,980 万円
諸費用の内訳
合計
0万円
手数料 約170万円 ⇒ 0円

弊社と直接の取引となり仲介会社を通さないため、一般的にかかる「仲介手数料」がかかりません!

仲介手数料
0円
登記費用
19.3万円
抵当権設定登記費用
20万円
登記手数料
15万円
固定資産税等精算金
8.5万円
管理費等精算金
6.4万円
契約時印紙代
1万円
金銭消費賃貸契約書印紙代
2.1万円
ローン事務手数料
5.5万円
融資手数料
109.6万円
火災保険料
12万円
不動産取得税
22.9万円
諸注意

※居住目的で住宅ローンを利用することを前提に計算された概算値となります(物件価格のみ借入の場合)。記載の金額は一般的な参考情報であり、断定的な判断材料を提供するものではありません。お借入れされる方の諸条件、ご利用される金融機関、借入金額等によって諸費用合計額が増減する場合があります。予めご了承ください。

※物件により別途「耐震適合証明書発行費用」「フラット35S適合証明書発行費用」「既存住宅売買瑕疵保険調査費」などの費用が発生する場合がございます。

※固定資産税等精算金の金額は年額分となります。実際は決済日により異なります。

※管理費等精算金の金額は2か月分となります。実際は決済日により異なります。

※全て税込、百円単位切り上げ表示です。

物件や内覧について
お気軽にお問い合わせください
WEBからお問い合わせ
掲載物件はすべて仲介手数料が無料
0120-123-970
受付時間 / 10:00〜18:30
(定休日 / 第1・3火曜日、毎週水曜日)
物件や内覧について
お気軽にお問い合わせください

掲載物件はすべて
仲介手数料が無料

0120-123-970 受付時間 / 10:00〜18:30 (定休日 / 第1・3火曜日、毎週水曜日)
WEBからお問い合わせ

この物件を
お気に入り登録しませんか?

※ お気に入り機能のご利用には、会員登録が別途必要です。
お気に入り
未公開物件も
チェックしてみませんか?
未公開物件とは不動産ポータルサイト公開前の物件情報を
いち早くお届けするMYSTAGE限定のサービスです。
工事着工前のため、内装変更がしやすく
自分好みにお部屋をカスタマイズしたい人にもオススメです。
更新される物件数は月平均50件以上!是非チェックしてみてください。
未公開物件をチェックする
エフステージのサービスを
ご存知ですか?
リノベーション総合企業として、お客様が本当に求める住宅づくりの追求と豊かな社会の実現に貢献します。
詳しく見る
購入前の腕試し!理想のお家が
カエールクイズ
詳しく見る
購入成功者の事例で学ぶ!
お悩み解決コラム
詳しく見る
購入の不安を安心にカエール!
不動産のギモン集
詳しく見る
会員登録はお済みですか?
会員登録すると他にも
様々なサービスをご利用いただけます。
未公開物件情報の
閲覧が可能
来店不要で
住宅ローン相談
各種メールの
通知機能
お気に入り
登録機能
新規登録画面へ移動する
ログイン画面へ
閲覧履歴
リノベマンションARISEを探す
トップ リノベマンションARISEを探す 溝の口サンビューハイツ
ご見学・物件について
お気軽にお問い合わせください
簡単1分! 見学予約する

掲載物件はすべて仲介手数料が無料

0120-123-970
受付時間 / 10:00〜18:30
(定休日 / 第1・3火曜日、毎週水曜日)
物件探しのご相談をご希望の方は下記よりお問い合せください。

掲載物件はすべて
仲介手数料が無料

0120-123-970
受付時間 / 10:00〜18:30 (定休日 / 第1・3火曜日、毎週水曜日)
お問い合わせはこちら
受付時間 / 10:00〜18:30 (定休日 / 第1・3火曜日、毎週水曜日)
MYSTAGEを知る
トップ リノベマンションARISE エフステージのサービス スタッフについて 会員限定コンテンツ
物件を探す
ARISEを探す エリア / テーマ別から探す 販売物件マップから探す
お悩みを解決する
お悩み解決コンテンツ一覧 不動産のギモン集 カエールクイズ お悩み解決コラム
会社案内
運営会社 ARISE 個人情報保護方針 利用規約
MYSTAGEを知る
トップ リノベマンションARISE エフステージのサービス スタッフについて 会員限定コンテンツ
物件を探す
ARISEを探す エリア / テーマ別から探す 販売物件マップから探す
お悩みを解決する
お悩み解決コンテンツ一覧 不動産のギモン集 カエールクイズ お悩み解決コラム
会社案内
運営会社 ARISE 個人情報保護方針 利用規約
PICK UP
OUR SERVICES
エフステージだからできる6つのこと
ARISE
”先進”のリノベマンション
ARISE
MEMBERSHIP
会員になって理想のお住まいを探しませんか?
RESOLUTION
購入の不安を安心に変えよう!
FOLLOW US
©2025 FSTAGE. All Rights Reserved.